New Cladding Project
View Road, Henderson, Auckland
View Rd Cladding Package
Key information
|
Location |
View Road, |
|
Client |
Taylor Construction |
|
Dates |
7 |
|
Area |
View Road, Henderson, Auckland |
Taylor Construction - View Rd Cladding Package
Diamond Homes Initiates New Cladding Project with Taylor Construction
Diamond Homes is thrilled to announce that we have commenced a new exterior cladding project with Taylor Construction,
marking the beginning of another significant project for our company in the construction industry.
This project aims to enhance the building's appearance, durability, and aesthetics to meet local building regulations and best industry practices.
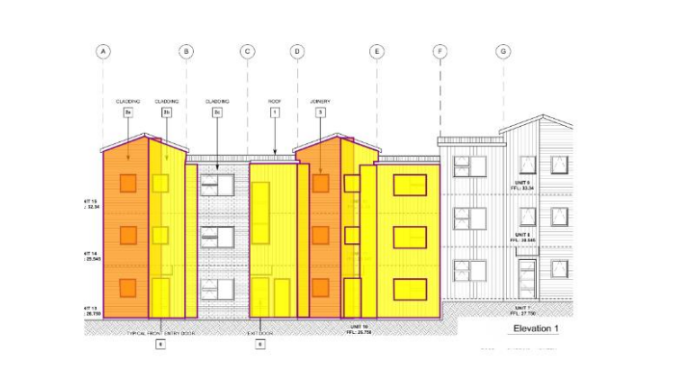
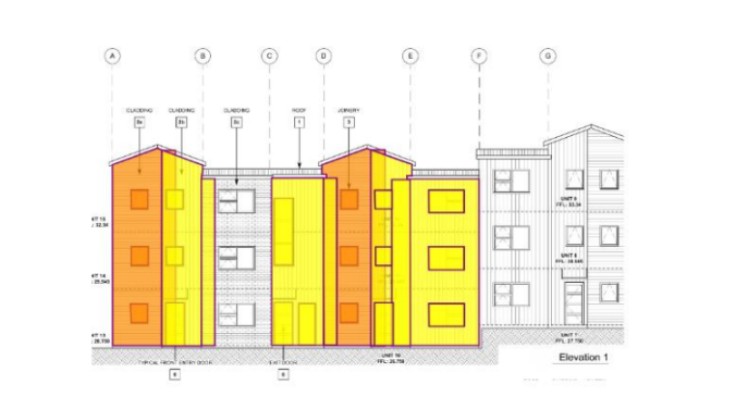
The scope of work for this renovation project primarily includes the installation of vertical and horizontal weatherboards,
following architectural drawings and adhering strictly to manufacturers' specifications. Additionally, the project involves the installation of any necessary scribers, facings, sill trims,
soakers, and foam seals to ensure the integrity and performance of the cladding system.
Diamond Homes is dedicated to complying with all health and safety and quality assurance requirements to ensure the smooth progress and high-quality outcome of the project.
The company will maintain continuous supervision of the construction site to ensure it remains clean, orderly, and compliant with all standards and regulations.
Through this renovation project, Diamond Homes will continue to demonstrate its commitment to quality and excellence, providing clients with satisfactory building solutions.
Please stay tuned for updates on the project's completion, and feel free to contact us with any questions or feedback.
For more information, please contact http://dhlnz.com/ or 0800 881 998.
